Précompte immobilier
RU
PEB
Acte de base
Plan
Plans façades
PU2005-41
Facture travaux
Offre
Description
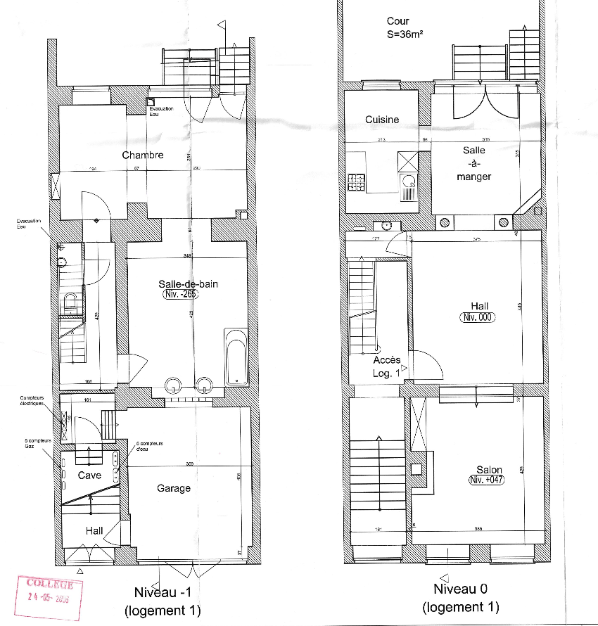
Saint-Gilles, rue de l’Aqueduc, idéalement situé à proximité immédiate des commerces, des transports en commun et du très prisé quartier du Châtelain, ce superbe souplex d’environ 110 m² nets comprend :
Au rez-bel-étage : de belles pièces de vie en enfilade comprenant le séjour et la salle à manger, une cuisine ouverte ainsi qu’un accès direct à une agréable cour de ± 36 m².
Le demi-sous-sol accueille une chambre avec dressing, un bureau, une salle de bains et un WC séparé.
Un garage complète ce bien au prix de 30 000€ (obligatoire).
Charges : 100 €/mois
Compteurs de gaz et d’électricité individuels
Châssis double vitrage
PEB : D
Disponible à l’acte
A visiter sans plus tarder !
Aspects financiers
- Précompte immobilier : 1214.19 €
- Charges locataire : 100 €
- Revenu cad. indexé : 2140 €
- Section : B
- Numéro : 358/02V 5
- Revenu cadastral (€) : 953 €
- Affectation urbanistique : zone d'habitat
Intérieur
- Surface bâtie : 85 m²
- Cuisine : Oui
- Buanderie : Oui
- Chauffage (ind/coll) : individuel
- Nbre de toilette(s) : 1
- Nombre de sdd : 1
- Chambre 1 : 16.5 m²
- Ascenseur : Non
- Double vitrage : isol. thermique et acoustique
- Largeur de façade : 6.2
- électricité : Oui
- Salle de séjour : 45 m²
- Cuisine : 8 m²
- Salle de bain 1 : 8 m²
- Chauffage : gaz
- Bureau : 8 m²
- Orientation de la terrasse 1 : nord-ouest
- Type de cuisine : amer. super-équipée
- Sdb : bain
- Gaz : Oui
- Parlophone : Oui
- Câbles téléphoniques : Oui
- Eau : Oui
Extérieur
- Nombre d'étages : 3
- Nombre de garage : 1
- Parking intérieur : Oui
- Châssis : bois
- Parking(s) intérieur : 1
Terrain et environs
- Type d'environnement : résidentiel
- Type d'environnement 2 : calme
- Exposition de la façade avant : sud-ouest
- Magasins : Oui
- Ecoles : Oui
- Transports en commun : Oui
- Centre sportif : Oui
- Risque d'inondation : pas situé en zone inondable
Certificats / Attestations
- Certificat d'électricité : non
Certificats énergétiques
- Label PEB : D
- PEB E-SPEC (kwh/m²/an) : 204
- Emission CO2 : 40
- E total : 24795 kWh/an
- PEB valide jusqu'au : 01/14/2036 00:00
- Date du PEB : 01/14/2026 00:00
























