Description
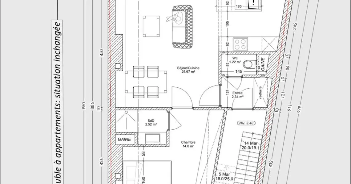
Saint-Gilles, à proximité immédiate de la place Van Meenen, des commerces et des transports en communs, dans un immeuble entièrement rénové (1ere occupation), superbe appartement au 3ème et dernier étage, parquet partout, lumineux et offrant : hall d'entrée avec vestiaire et wc séparé, beau séjour, cuisine Us équipée, 1 chambre de +- 14m², salle de douche, wc séparé, terrasse arrière de +- 4 m².
PEB : D+.
Double vitrage. Cave.
Petite copropriété avec de faibles charges !
Idéal pour investissement/premier achat !
Intérieur
- Surface bâtie : 50 m²
- Cuisine : Oui
- Buanderie : Oui
- Chauffage (ind/coll) : individuel
- Nbre de toilette(s) : 1
- Nombre de sdd : 1
- Chambre 1 : 14 m²
- Ascenseur : Non
- Double vitrage : isol. thermique et acoustique
- Largeur de façade : 7.43
- égouts : Oui
- électricité : Oui
- Nbre de terrasse(s) : 1
- Salle de séjour : 25 m²
- Cuisine : 6 m²
- Salle de bain 1 : 3 m²
- Chauffage : gaz
- Orientation de la terrasse 1 : ouest
- Type de cuisine : amer. semi-équipée
- Sdb : douche
- Gaz : Oui
- Parlophone : Oui
- Câbles téléphoniques : Oui
- Eau : Oui
- Cave : Oui
Extérieur
- Nombre d'étages : 3
- Année de rénovation : 2019
- Châssis : pvc
- Surface de terrasse 1 : 4 m²
Terrain et environs
- Magasins : 100 m
- Transports en commun : 100 m
- Type d'environnement : calme
- Type d'environnement 2 : résidentiel
- Exposition de la façade avant : est
- Risque d'inondation : pas situé en zone inondable
- Type de zone inondable : zone riveraine délimitée
Energie
- Label PEB : D
- PEB E-SPEC (kwh/m²/an) : 151
- Emission CO2 : 30











