Electricité
Acte de base
Acte de base
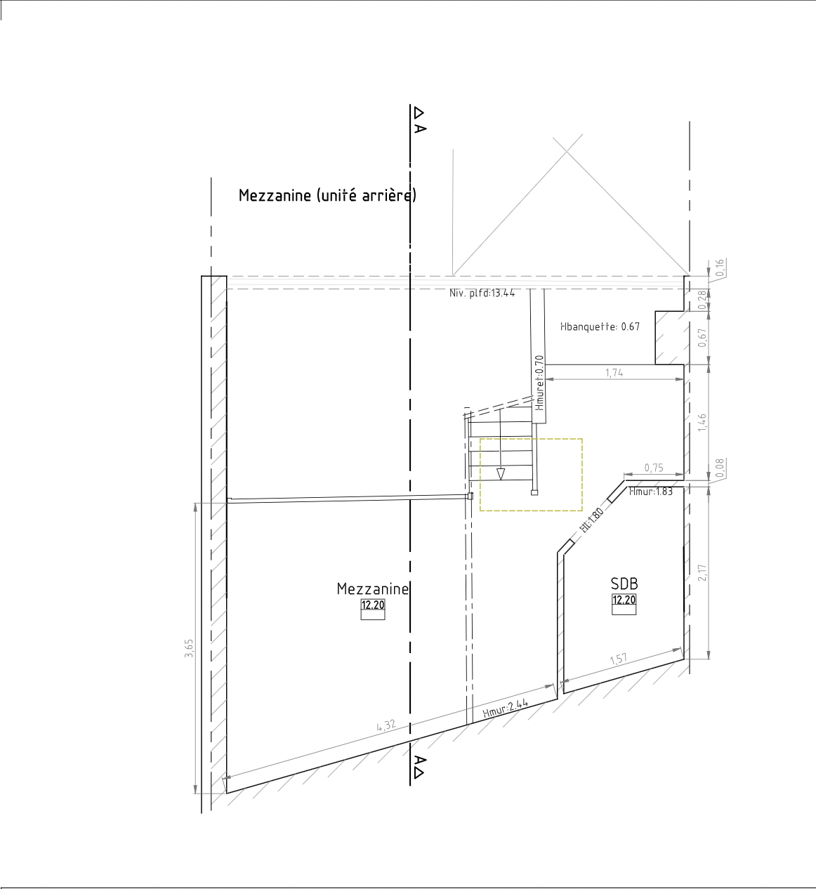
Plan atelier
Précompte
PV AG 2023
PV AG 2024 et décomptes charges
AG 2025 et décomptes
Offre
Description
Forest, à proximité du Parc DUDEN, des transports en communs et commerces, au rez-de-chaussée arrière d'une petite copropriété, venez découvrir cet atelier de +- 45 m2 (bruts) avec cour privative composé comme suit :
Au rez de chaussée : un séjour de +- 20m2 donnant sur une cuisine semi ouverte semi équipée. A l'entresol :un wc séparé et au 1er étage une chambre en mezzanine de +- 13m2, une salle de bain et un coin bureau.
Travaux de rafraîchissement à prévoir.
Double vitrages.
Actuellement loué 475,35 € + 45 € pour les charges.
Le dossier complet est consultable sur notre site internet : https://www.nesting-realty.be/fr/atelier-forest-ref7560570
A découvrir !
Aspects financiers
- Profession libérale poss. : Oui
- Affectation urbanistique : Atelier
- Précompte immobilier : 74.28 €
- Charges locataire : 60 €
- Revenu cad. indexé : 117 €
- Loué : Oui
- Destination bâtiment : atelier
- Revenu cadastral (€) : 52 €
Intérieur
- Surface bâtie : 117 m²
- Cuisine : Oui
- Chauffage (ind/coll) : individuel
- Nbre de toilette(s) : 1
- Nombre de sdd : 1
- Ascenseur : Non
- Double vitrage : Oui
- Largeur de façade : 6
- égouts : Oui
- électricité : Oui
- Chauffage : gaz
- Type de cuisine : kitchenette
- Sdb : bain
- Gaz : Oui
- Parlophone : Oui
- Câbles téléphoniques : Oui
- Eau : Oui
Extérieur
- Année de construction : 1928
- Nombre d'étages : 1
- Année de rénovation : 2003
- Centrale tél. : Oui
- Châssis : bois ou pvc
- Surface de terrasse 1 : 4 m²
- Nombre de lots : 1
Terrain et environs
- Type d'environnement : résidentiel
- Type d'environnement 2 : calme
- Exposition de la façade avant : sud-est
- Magasins : Oui
- Ecoles : Oui
- Transports en commun : Oui
- Centre sportif : Oui
- Autoroute : Oui
- Risque d'inondation : pas situé en zone inondable
- Type de zone inondable : zone innondable délimitée
- Risque d'inondation 2023 : Classe A (aucune chance)
Certificats / Attestations
- Attestation du sol : Oui
- Certificat d'électricité : oui, conforme
Certificats énergétiques
- Label PEB : G
- PEB E-SPEC (kwh/m²/an) : 1049
- Emission CO2 : 211









