Description
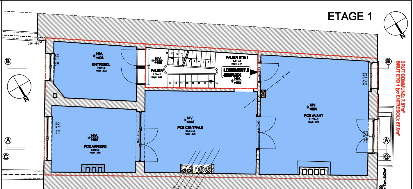
Molenbeek, Rue Jennart, venez découvrir cet appartement casco de 56m² brut situé à proximité des transports et des commerces.
Possibilité d'aménagement : 1 chambre, un séjour de ±21 m², un séjour, une cuisine et une salle de bains. Un entresol de +- 8m2 vient compléter cet appartement.
Tous les travaux d’aménagement intérieur restent à réaliser par l’acquéreur.
Possibilité de réaliser une terrasse sous réserve d'obtention d'un permis.
Petite copropriété de 3 unités avec de faibles charges.
Une gaine technique centralisée dessert chaque lot et comprend notamment une conduite de cheminée CLV en inox pour chaudières ventouses, les raccordements VMC, une décharge d’égouttage, ainsi que les arrivées individuelles en gaz, électricité et eau.
PEB G
Electricité non conforme.
Libre à l'acte.
A visiter !
Aspects financiers
- Section : A
- Numéro : 190N2
- Surface (ha/a/ca) : 2a30ca
Intérieur
- Surface bâtie : 75 m²
- Nbre de toilette(s) : 1
- Nombre de sdd : 1
- Chambre 1 : 9.3 m²
- Ascenseur : Non
- Double vitrage : Oui
- Largeur de façade : 5
- Nbre de terrasse(s) : 2
- Salle de séjour : 21 m²
- Cuisine : 6.3 m²
- Salle de bain 1 : 3.4 m²
- Chauffage : Pas installé
- Orientation de la terrasse 1 : sud-est
- Surface balcony 1 : 5 m²
- Surface balcony 2 : 1.5 m²
Extérieur
- Année de construction : 1918
- Nombre d'étages : 3
- Surface de terrasse 1 : 5 m²
Terrain et environs
- Type d'environnement : résidentiel
- Type d'environnement 2 : calme
- Exposition de la façade avant : nord-ouest
- Magasins : Oui
- Ecoles : Oui
- Transports en commun : Oui
- Centre sportif : Oui
Certificats / Attestations
- Attestation du sol : Oui
- Certificat d'électricité : non
Certificats énergétiques
- Label PEB : G
- PEB E-SPEC (kwh/m²/an) : 682
- Emission CO2 : 108
- E total : 38143 kWh/an









